Vielseitig nutzbares Lebensmittelgeschäft im Zentrum von Marling

Video zu dieser Immobilie
Datenblatt
externe Objnr YT507
Nutzungsart Gewerbe
Vermarktungsart Miete
Objektart Laden/Einzelhandel
Objekttyp Ladenlokal
Ort Marling
Straße Hauptstraße
Hausnummer 2
Land Italien
Etage E
Verkaufsfläche 180 m²
externe Objnr YT507 Nutzungsart Gewerbe
Vermarktungsart Miete Objektart Laden/Einzelhandel
Objekttyp Ladenlokal Ort Marling
Straße Hauptstraße Hausnummer 2
Land Italien Etage E
Verkaufsfläche 180 m²

Hinweis zur Provision:

Details zur Immobilie
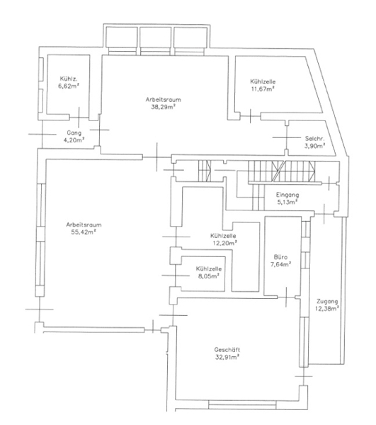
Die ehemalige Metzgerei im Zentrum von Marling sucht ab sofort einen Mieter für die großzügig angelegte Liegenschaft samt Geschäft, Arbeitsraum und Kühlzellen. Stellplätze im Hofraum vorhanden. Gute Sichtbarkeit und Erreichbarkeit gegeben.
Bei Bedarf ist es möglich, ein angrenzendes Lokal / Büro mit Magazin dazu zu mieten um € 600,- / Monat.
Die angegebenen Informationen sind indikativ und können Abänderungen unterliegen.
Netto Kaltmiete 2.500 €
Währung
Energieausweis Skala Energieausweis Zeiger
Zustand Gepflegt
Details zur Immobilie
Energieausweisdaten
Energieausweis Skala Energieausweis Zeiger
Zustand Gepflegt
Netto Kaltmiete 2.500 €
Währung
Beschreibung der Immobilie Die ehemalige Metzgerei im Zentrum von Marling sucht ab sofort einen Mieter für die großzügig angelegte Liegenschaft samt Geschäft, Arbeitsraum und Kühlzellen. Stellplätze im Hofraum vorhanden. Gute Sichtbarkeit und Erreichbarkeit gegeben.
Bei Bedarf ist es möglich, ein angrenzendes Lokal / Büro mit Magazin dazu zu mieten um € 600,- / Monat.
Die angegebenen Informationen sind indikativ und können Abänderungen unterliegen.
Ansprechpartner

Herr Manuel Schweigkofler
Theaterplatz 21/b
I-39012 Meran

Telefon 0473 234185 Fax 0473 211021 E-Mail info@sp-immobilien.it

Sofortanfrage
Ich bin mit den Datenschutzbestimmungen einverstanden.

Mit * gekennzeichnete Felder sind Pflichtangaben

S&P Immobilien GmbH

Rufen Sie uns an. Wir freuen uns auf ein persönliches Gespräch.

0473 234185
Kontakt Kontakt